© Patrick Cuddy 2017.   With thanks to Bramhall Blenkharn Ltd for the use of its copyrighted material.  Website designed & built by Patrick Cuddy.

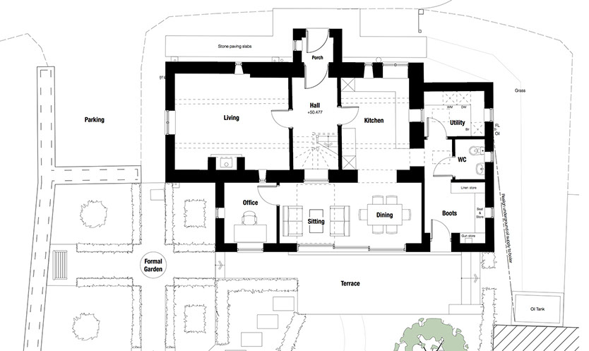
High Mitten Cottage was converted from a barn almost 20 years ago originally as a holiday cottage and latterly as dwelling, but as time has progressed it is in need of a rethink in terms of its accommodation.  Although not listed it has some fine details that have been preserved with this 'lean-to' extension to the side and rear as well as a porch to protect the front entrance.

 

A planning application was submitted to North York Moors National Park Authority in August 2017.

 

 

Please browse the images using the navigation buttons to the right of the main image.......

 

or click here to go back to the work page.......

 

or click here if you want to move on to the next project.

extension hawsker

Town Farm House  9 High Market Place  Kirkbymoorside  North Yorkshire  YO62 6AT  01751 269312

patrick cuddy architect